TORINO - AMPIO APPARTAMENTO - VIA MELEZET
Appartamento in Vendita di 130 mq in Torino, Via Melezet – Zona Parella
L'alloggio è situato al secondo piano di una piccola e graziosa palazzina a pochi passi da Corso Francia, comoda alla fermata della Metro (Monte Grappa).
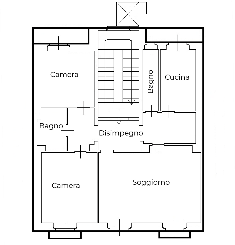
L’immobile è composto da:
ingresso
salone doppio
due camere da letto
cucina
bagno e servizio
due balconi e due balconcini alla francese.
Doppia area di esposizione
il salotto e una camera da letto, entrambi con balconcino alla francese, affacciano su Via Melezet;
l'altra camera da letto e la cucina, entrambe con balcone, affacciano lato interno cortile
completa la proprietà una grande cantina al piano interrato
Diritto d'uso del posto auto in cortile
Il riscaldamento è centralizzato
Certificazione Energetica: Classe D EPgl,nren 110,87 kwh/mq
Consuntivo 2023-2024
spese di riscaldamento quota fissa € 636,33 + consumo
spese ascensore € 463,56
spese condominiali comprensive di acqua € 2.158,97
L’appartamento si trova in una buona posizione grazie alla vicinanza alla metropolitana infatti è a soli 200 m dalla fermata del pullman più vicina e a 170 m dalla fermata della metropolitana, è quindi molto comodo anche a per chi non vuole utilizzare un mezzo privato per spostarsi in città.
L’appartamento risulta inoltre ben servito anche da attività commerciali, nel raggio di pochi metri è possibile trovare bar, pasticcerie, parrucchieri, negozi per ricambio auto, banca Unicredit, pizzerie ed è possibile andare a fare la spesa a piedi avendo vicino supermercati come Borrello , U2 o Ins, o in macchina al Supermercato Carrefour di corso Monte Cucco.
L’immobile si trova inoltre a 89 m dalla “Azienda Sanitaria Locale 2 Torino, a 350 m dall’ ingresso del parco della Tesoriera dove è possibile trovare la Biblioteca Civica musicale Andrea della Corte, vicino a numerose scuole come la Scuola Media Statale “Dante Alighieri”, il Liceo Scientifico “Carlo Cattaneo”, l'Istituto "Carlo Levi", il Liceo Classico e Musicale "Cavour" , l'istituto scolastico "Sacra Famiglia" e altri e a 700 m dall’ ufficio postale più vicino
Richiesta: 240.000,00


































