torino - ampio appartamento - corso sebastopoli
Proponiamo in vendita ampio appartamento di mq 130
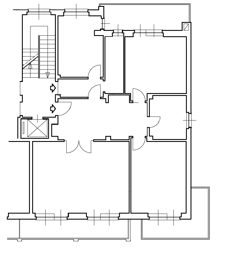
con doppio ingresso, al piano 9 e ultimo con ascensore composto da:
ingresso
ampia sala con doppio accesso al balcone con affaccio su corso Sebastopoli e vista panoramica
disimpegno
due camere da letto, entrambe con balcone
cucina
doppi servizi entrambi finestrati
tre aree di esposizione
balconi ampi e con vista panoramica sulle montagne
riscaldamento centralizzato con Termo Valvole - Teleriscaldamento
Spese condominiali 2023/2024 circa € 950 + € 125 a persona per l'acqua
boiler elettrico per l'acqua calda sanitaria
Classe energetica E EPgl,nren 118,41 KWH/M2
infissi in legno vetro singolo
porta blindata
pavimenti in marmo in ingresso sala, una camera da letto e bagno
parquet nell'altra camera
ceramica in cucina
completa la proprietà una cantina 
portineria nel condominio a fianco
l'immobile è situato in un contesto piacevole, ben fornito da attività commerciali, supermercati, mezzi di trasporto, centri sportivi e piscine. A poco più di 1 km a parco piazza d'Armi e allo Stadio Olimpico e all'Inalpi Arena, luogo di spettacoli e concerti.
A 10 minuti di macchina all'Ospedale Mauriziano
Comodo sia per raggiungere il centro di Torino che i principali svincoli per l'autostrada.
a 2,5 km da Shopville Le Gru e Decatholn di Grugliasco e a 4 km da LE Fornaci
Richiesta: € 295.000,00




